洗面室やトイレ、キッチンなどの水廻りにはしばしば「フロアタイル」という水に強い塩ビ素材でできた床材を使います。色やデザインのバリエーションも豊富ですが、中でも私たちは「ボロン」という商材を多く使います。
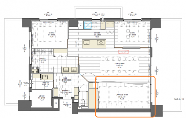
今回Iプロジェクトではこちらのフリースペースの床にボロンを採用いたしました。
ボロンとは、スウェーデンで生まれたビニル製の織物床シートです。通常のフロアタイルは石の柄や木目、フローリングなどを印刷技術で再現したタイルですが、ボロンは塩化ビニルを編み込んだ、いわばカーペットのようなフロアタイルです。カーペットや天然のサイザルのようなテクスチャーでありながら、アレルギーの主因となるダニや埃を通常のお掃除でほぼ取り除くことができる環境に優しい商材です。
キャスター付の椅子を使ってもへたらないほど耐久性が強く、表面に傷が付きません。さらにはデザイン性が高く、カラーバリエーションも豊富。多彩なデザインと美しい色展開。性能とデザインを兼ねそろえた私たちが理想とする商材です。
リノベーションにおいて、メンテナンスがしづらい、お掃除が嫌になる、という不満点は解消しなければなりません。ボロンは吸水性がないので、コーヒーやワインなどの飲み物をこぼしてもシミになりません。埃やゴミも入りこまないので簡単にお手入れができます。水廻りだけでなく、埃がたまりやすいクローゼットにもおすすめです。
和室の需要は減る傾向にありますが、昔ながらの畳の空間は便利なもの。和室のように自由に使える空間は必要だけど、畳を敷くほど大げさにはしたくない。そんな時にはボロンがおすすめです。リビングの一角に敷き詰めることでフレキシブルなスペースになります。今回のコンセプトルームにもリビングの一部分にボロンを採用しました。大勢で座って談話したり、お布団を敷いて寝たり、自由に使うための空間には最適です。子供部屋にもおすすめです。畳は天然素材ですのでお子様の落書きや食べこぼしの対応が困難ですが、ボロンは塩ビ製の商材ですのでサッと拭くだけの簡単なお手入れで大丈夫です。
こちらが実際にボロンを使った施工例です。貼る向きを変えながら施工することで、光が当たった時の見え方が変わり、琉球畳を敷き詰めているかのような雰囲気になります。
デザイン性と機能性を兼ねそろえた素材を私たちは日々追及しています。今後も新しい素材をご紹介してまいります。
洗面室やトイレ、キッチンなどの水廻りにはしばしば「フロアタイル」という水に強い塩ビ素材でできた床材を使います。色やデザインのバリエーションも豊富ですが、中でも私たちは「ボロン」という商材を多く使います。
今回Iプロジェクトではこちらのフリースペースの床にボロンを採用いたしました。
「ボロン」とは?
ボロンとは、スウェーデンで生まれたビニル製の織物床シートです。通常のフロアタイルは石の柄や木目、フローリングなどを印刷技術で再現したタイルですが、ボロンは塩化ビニルを編み込んだ、いわばカーペットのようなフロアタイルです。カーペットや天然のサイザルのようなテクスチャーでありながら、アレルギーの主因となるダニや埃を通常のお掃除でほぼ取り除くことができる環境に優しい商材です。
私たちがボロンを選ぶ理由
耐久性はもちろん、デザイン性も高い
キャスター付の椅子を使ってもへたらないほど耐久性が強く、表面に傷が付きません。さらにはデザイン性が高く、カラーバリエーションも豊富。多彩なデザインと美しい色展開。性能とデザインを兼ねそろえた私たちが理想とする商材です。
高いメンテナンス性
リノベーションにおいて、メンテナンスがしづらい、お掃除が嫌になる、という不満点は解消しなければなりません。ボロンは吸水性がないので、コーヒーやワインなどの飲み物をこぼしてもシミになりません。埃やゴミも入りこまないので簡単にお手入れができます。水廻りだけでなく、埃がたまりやすいクローゼットにもおすすめです。
畳の代わりになる
和室の需要は減る傾向にありますが、昔ながらの畳の空間は便利なもの。和室のように自由に使える空間は必要だけど、畳を敷くほど大げさにはしたくない。そんな時にはボロンがおすすめです。リビングの一角に敷き詰めることでフレキシブルなスペースになります。今回のコンセプトルームにもリビングの一部分にボロンを採用しました。大勢で座って談話したり、お布団を敷いて寝たり、自由に使うための空間には最適です。子供部屋にもおすすめです。畳は天然素材ですのでお子様の落書きや食べこぼしの対応が困難ですが、ボロンは塩ビ製の商材ですのでサッと拭くだけの簡単なお手入れで大丈夫です。
こちらが実際にボロンを使った施工例です。貼る向きを変えながら施工することで、光が当たった時の見え方が変わり、琉球畳を敷き詰めているかのような雰囲気になります。
デザイン性と機能性を兼ねそろえた素材を私たちは日々追及しています。今後も新しい素材をご紹介してまいります。