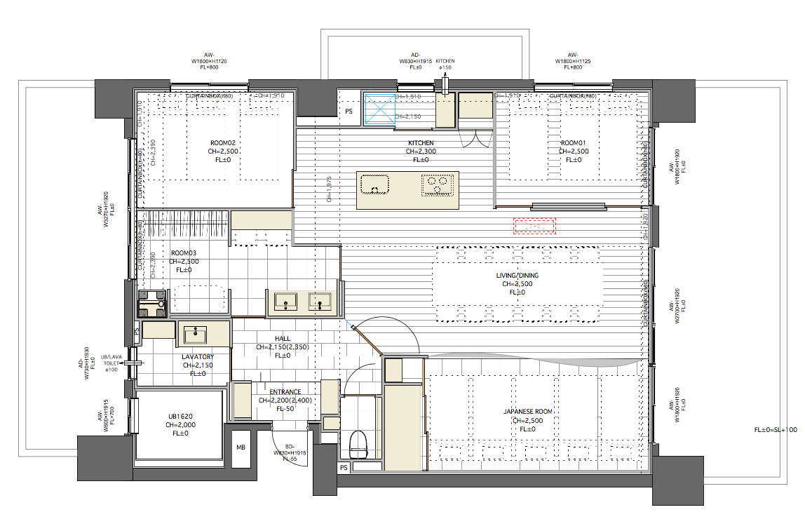
2月下旬に着工したIプロジェクトの工事ですが、現在内部造作工事を進めております。どんな空間になるのか、早速ですが完成形の間取りをご紹介いたします。
2LDKの間取りですが、フリースペースを入れるとリビングの広さはなんと約30畳。「人が快適に過ごせる場所」というこの空間のコンセプトを基に、LDKをメインとして間取りを考え、多くの人が集える広々としたリビングルームを一番に間取りを考えました。
大勢で食卓を囲むパーティを想定して大きなダイニングテーブルを2台並べます。ここに人が集まり、コンセプトルームの中心的な空間になります。キッチンはアイランドタイプに。みんなでキッチンを囲んで楽しくお料理。ますます会話が広がりそうですね。
このフリースペースもコンセプトに沿った空間の一つです。部屋として区切らずにリビングの一角のスペースとして自由に使える空間にしました。宿泊も想定していますので、布団を敷いて寝る際などはカーテンで間仕切りができるようにしています。
?リビングダイニングを広く取るために、居室は最小限にしました。よくあるような廊下の突き当りにある居室とは反対で、どちらもLDKに隣接しているので開放的で明るく、引き戸を開ければ海側からの光と風が差し込んできます。バルコニー側の居室には出入り口を二つ設け、両サイドからのアクセスを可能に。就寝時間が違っても出入りが気になりません。回遊性があるので引き戸を開けた時には視覚的にも感覚的にも空間が広く感じられます。
?大勢の宿泊を想定して洗面室とは別にメイクルームを設けました。通常の住宅ではなかなか取れない贅沢な空間です。2ボウルタイプの洗面化粧台に、メイク用のカウンター。奥にはクローゼットとちょっとしたくつろぎのスペースを。服を選びながら、身支度をしながら、ちょっと腰かけてゆったりとできるようにソファを置きます。ホテルのようなこの癒しの空間が女性には嬉しいものです。
洗面室とお風呂は空間全体の中心となるリビングダイニングからは一番離れたところに設けました。キッチンで料理をしながら洗面室で洗濯ができるような家事空間のフリーアクセスを私たちは常々大切に考えていますが、今回のこのコンセプトルームは「人が集まって快適に過ごせる空間」がテーマですので、LDKの音が伝わらないように敢えて隅の方に浴室と洗面室を設けております。誰かが浴室を使っていても気にならず、使う方もゆっくりと入浴ができます。
Iプロジェクトの全貌が見えてきたと思います。CGや素材もまたご紹介いたします。
2月下旬に着工したIプロジェクトの工事ですが、現在内部造作工事を進めております。どんな空間になるのか、早速ですが完成形の間取りをご紹介いたします。
2LDKの間取りですが、フリースペースを入れるとリビングの広さはなんと約30畳。「人が快適に過ごせる場所」というこの空間のコンセプトを基に、LDKをメインとして間取りを考え、多くの人が集える広々としたリビングルームを一番に間取りを考えました。
キッチンとダイニング
大勢で食卓を囲むパーティを想定して大きなダイニングテーブルを2台並べます。ここに人が集まり、コンセプトルームの中心的な空間になります。キッチンはアイランドタイプに。みんなでキッチンを囲んで楽しくお料理。ますます会話が広がりそうですね。
フリースペース
このフリースペースもコンセプトに沿った空間の一つです。部屋として区切らずにリビングの一角のスペースとして自由に使える空間にしました。宿泊も想定していますので、布団を敷いて寝る際などはカーテンで間仕切りができるようにしています。
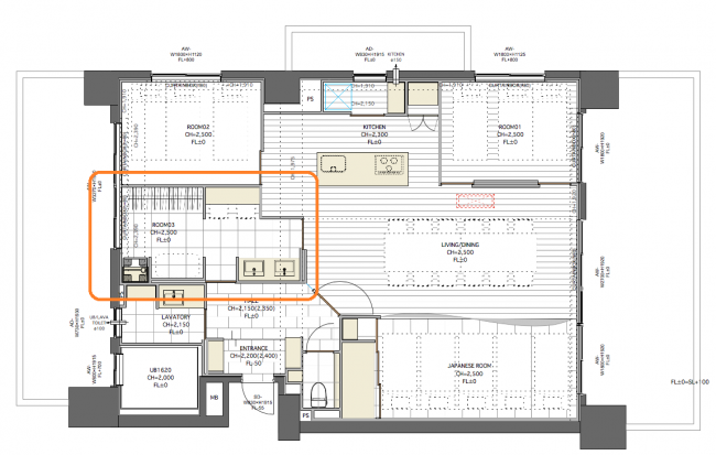
居室
?リビングダイニングを広く取るために、居室は最小限にしました。よくあるような廊下の突き当りにある居室とは反対で、どちらもLDKに隣接しているので開放的で明るく、引き戸を開ければ海側からの光と風が差し込んできます。バルコニー側の居室には出入り口を二つ設け、両サイドからのアクセスを可能に。就寝時間が違っても出入りが気になりません。回遊性があるので引き戸を開けた時には視覚的にも感覚的にも空間が広く感じられます。
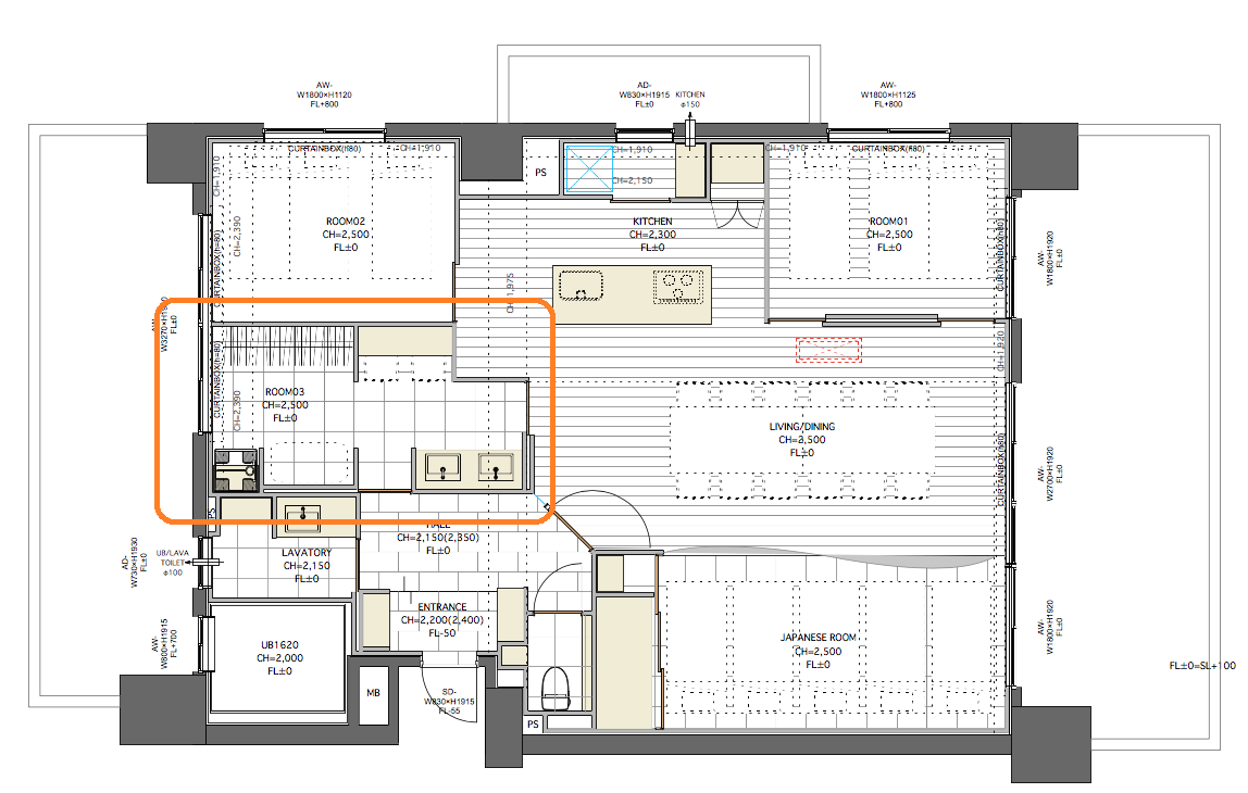
メイクルーム
?大勢の宿泊を想定して洗面室とは別にメイクルームを設けました。通常の住宅ではなかなか取れない贅沢な空間です。2ボウルタイプの洗面化粧台に、メイク用のカウンター。奥にはクローゼットとちょっとしたくつろぎのスペースを。服を選びながら、身支度をしながら、ちょっと腰かけてゆったりとできるようにソファを置きます。ホテルのようなこの癒しの空間が女性には嬉しいものです。
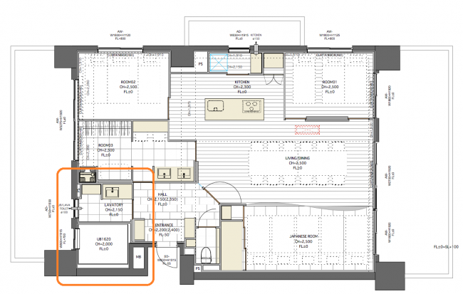
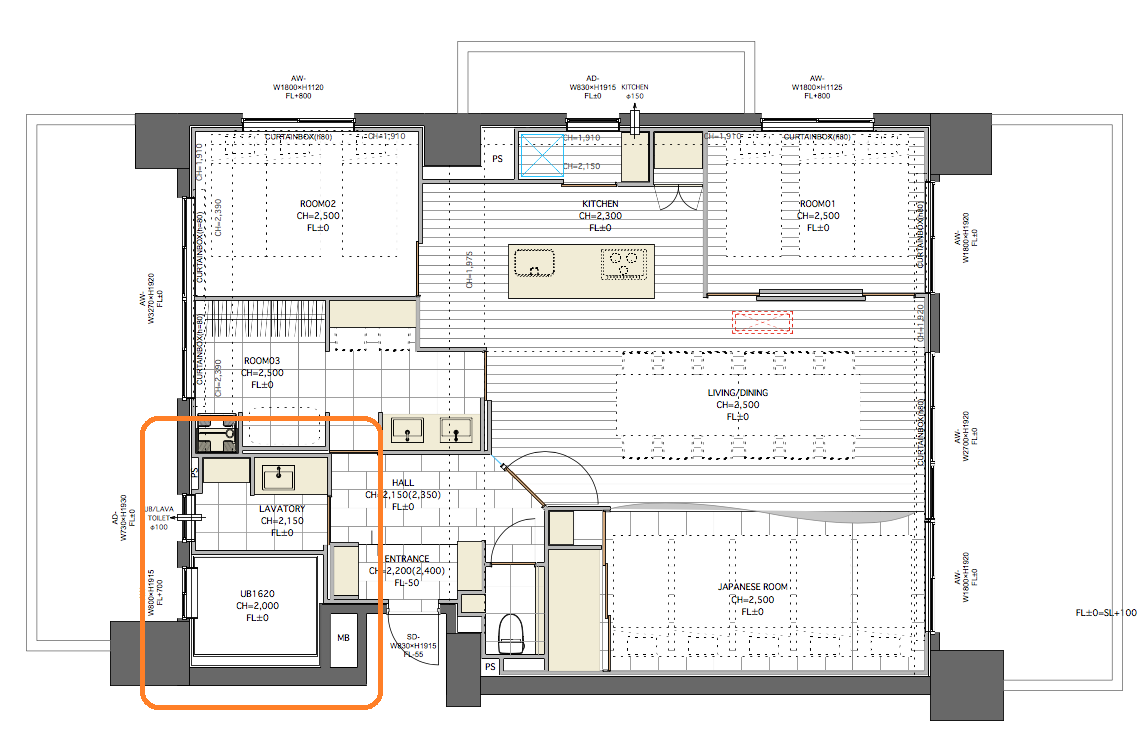
洗面室
洗面室とお風呂は空間全体の中心となるリビングダイニングからは一番離れたところに設けました。キッチンで料理をしながら洗面室で洗濯ができるような家事空間のフリーアクセスを私たちは常々大切に考えていますが、今回のこのコンセプトルームは「人が集まって快適に過ごせる空間」がテーマですので、LDKの音が伝わらないように敢えて隅の方に浴室と洗面室を設けております。誰かが浴室を使っていても気にならず、使う方もゆっくりと入浴ができます。
Iプロジェクトの全貌が見えてきたと思います。CGや素材もまたご紹介いたします。