家を建てるとき、自分たちは一体どのくらいの土地が必要なのか知るのは意外と難しいです。
いろんなものを見て、情報をあつめて、駐車場は何台分だからこのくらいかな...とかで、なんとなく決めて、それがいつのまにか思い込みになってしまったりします。50坪くらいかなあ....から50坪ないといけないみたいな。なので、そこはプロに見てもらうことが一番いいです。
当社のお客様でも、そういった方はいらっしゃいます。それでは、実際の当社の提案例をご紹介します。これは、当社のお施主様で実際にあったケースです。このように、60坪ないといけないと思っていたお施主様も、弊社からの提案で、50坪でもスキップフロアというカタチで理想の家を実現できることに気づいていただきました。
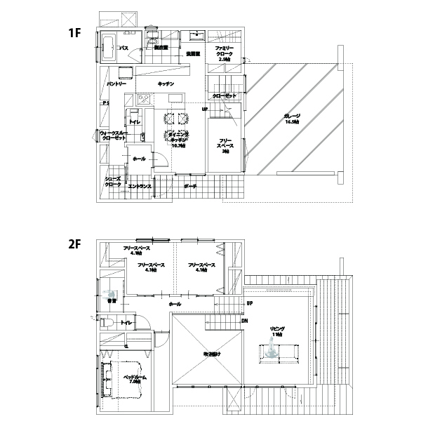
これは、お施主様自身だけの判断では、気づけないことで、プロだからこその視点でアドバイスさせていただいたケースです。?????1階にキッチンをはじめとした水回りを配置し、ガレージからの直接の入り口を設け、1.5階にリビングルームをおき、その下部分を大きなガレージとし、縦の空間を有効利用しました。そして2階に寝室等の部屋をつくり、1から2階まで吹き抜けにすることで階段がありながら、一体感のある住まいになりました。みなさまも、イメージは膨らましても思い込みだけはしないように、家づくりの良いパートナーと 一緒に、家づくりをすすめていきましょう。
家を建てるとき、
自分たちは一体どのくらいの土地が必要なのか知るのは意外と難しいです。
いろんなものを見て、情報をあつめて、
駐車場は何台分だからこのくらいかな...とかで、なんとなく決めて、
それがいつのまにか思い込みになってしまったりします。
50坪くらいかなあ....から50坪ないといけないみたいな。
なので、そこはプロに見てもらうことが一番いいです。
当社のお客様でも、そういった方はいらっしゃいます。
それでは、実際の当社の提案例をご紹介します。
これは、当社のお施主様で実際にあったケースです。
このように、60坪ないといけないと思っていたお施主様も、
弊社からの提案で、50坪でもスキップフロアというカタチで
理想の家を実現できることに気づいていただきました。
これは、お施主様自身だけの判断では、気づけないことで、



プロだからこその視点でアドバイスさせていただいたケースです。
?????
1階にキッチンをはじめとした水回りを配置し、
ガレージからの直接の入り口を設け、1.5階にリビングルームをおき、
その下部分を大きなガレージとし、縦の空間を有効利用しました。
そして2階に寝室等の部屋をつくり、1から2階まで吹き抜けにすることで
階段がありながら、一体感のある住まいになりました。
みなさまも、イメージは膨らましても思い込みだけはしないように、
家づくりの良いパートナーと 一緒に、家づくりをすすめていきましょう。